Saint-Barthélemy

Pôle scolaire, périscolaire et accueil de loisirs

Saint Barthelemy galerie
Saint Barthelemy galerie2
ST BARTHELEMY AXO V2
ST BARTHELEMY 001
ST BARTHELEMY 100
ST BARTHELEMY 200

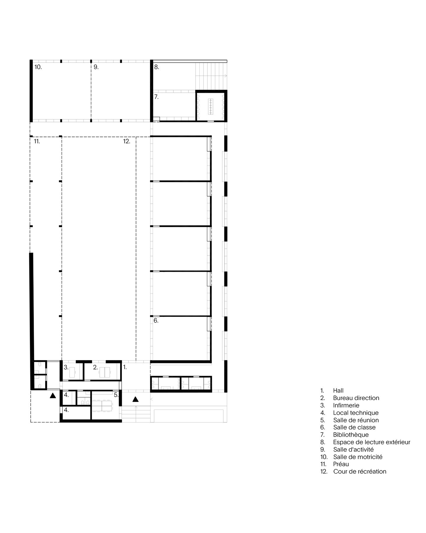
Au cœur du bourg, le nouveau pôle scolaire de Saint-Barthélemy réunit enseignement, périscolaire et accueil de loisirs autour d’une cour centrale conçue comme une agora ouverte à la vie collective. L’implantation respecte la trame historique du site et prolonge les murs en pierre existants pour structurer un ensemble compact et lisible.
Quatre volumes en bois s’organisent autour de ce vide central, articulant parvis, venelle et cour végétale dans une continuité urbaine douce vers les équipements sportifs voisins.
La structure et la charpente en bois lamellé-collé, les façades en bardage d’épicéa thermo-chauffé et les toitures en zinc affirment une écriture sobre et pérenne. La conception bioclimatique, la géothermie et l’usage de matériaux biosourcés assurent de hautes performances environnementales tout en offrant aux enfants un lieu lumineux, protecteur et ouvert sur la nature.

Saint-Barthélemy

Pôle scolaire, périscolaire et accueil de loisirs