Plougoumelen

Restaurant scolaire

Plougoumelen galerie
Plougoumelen galerie2
PLOUGOUMELEN AXO
PLOUGOUMELEN 001
PLOUGOUMELEN 100
PLOUGOUMELEN 200

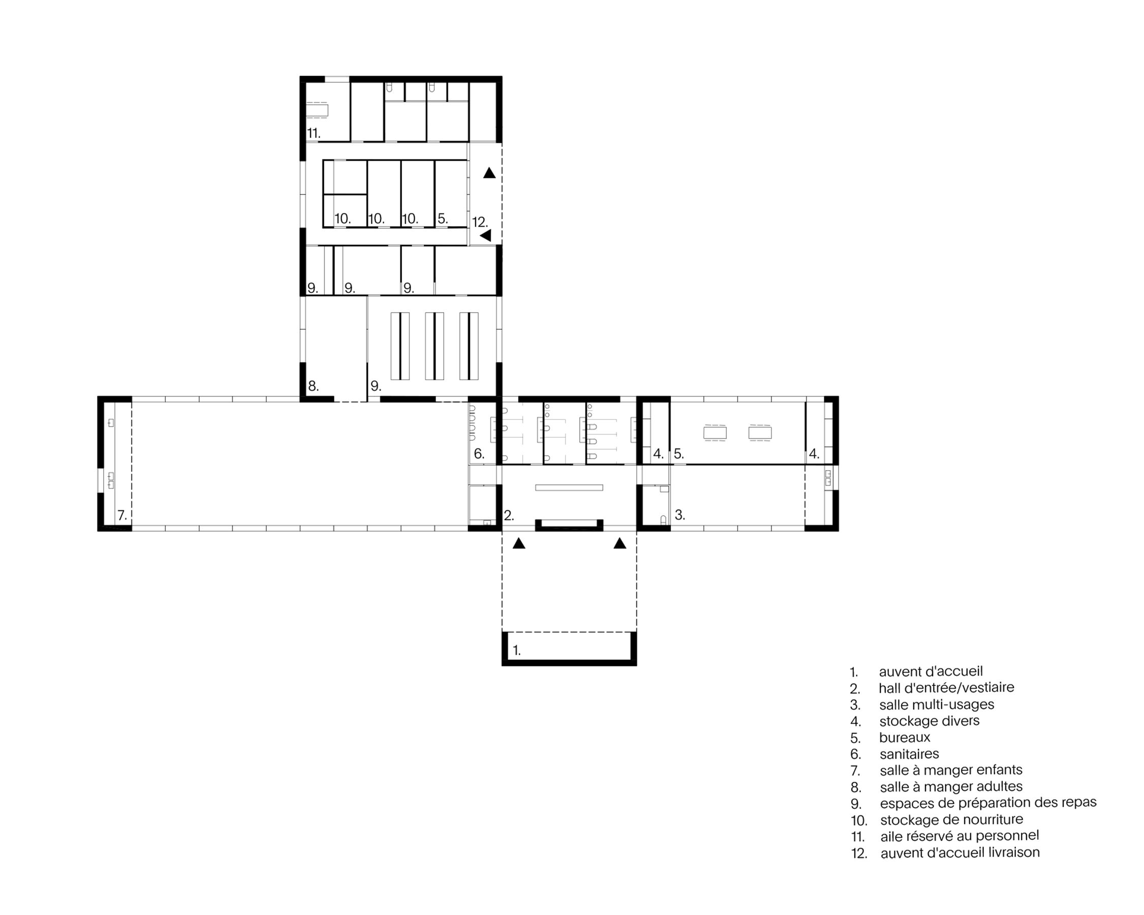
À la rencontre du bourg et des paysages naturels, le nouveau restaurant scolaire et pôle enfance-jeunesse de Plougoumelen constitue un lieu de convergence entre les générations et les usages. L’implantation longitudinale du bâtiment relie les équipements scolaires existants à la prairie d’activités, structurant un ensemble cohérent et ouvert sur le territoire.
Quatre volumes à toitures inclinées composent une silhouette rythmée, conciliant l’échelle domestique des maisons voisines et celle des équipements publics. Ces entités distinctes abritent les pôles de restauration, production et animation, reliés par un hall central traversant.
La structure bois, les façades minérales et les toitures en ardoise intègrent savoir-faire local et performance énergétique. L’ensemble s’inscrit dans une démarche environnementale ambitieuse, combinant matériaux biosourcés, panneaux photovoltaïques et gestion douce des eaux pluviales pour une architecture sobre, pérenne et ancrée dans son paysage.

Plougoumelen

Restaurant scolaire